Parhuset
Parhuset, med inspiration från Längan, skapar en harmonisk balans mellan dåtidens charm och dagens funktionalitet.
Om projektet
Som en del av vår vision att bevara och förstärka den historiska atmosfären på tomten, planerar vi att uppföra en ny byggnad – “Parhuset”. Denna tillbyggnad kommer att utformas som en nära “kopia” av Längan, med fokus på att återskapa exteriörens pittoreska charm och tidstypiska detaljer.
Syftet är att skapa en harmonisk helhet där ny och gammal arkitektur möts, vilket bevarar områdets karaktär och skapar ett sammanhållet intryck. Med en modern och funktionell interiör kommer Parhuset att erbjuda bekvämligheter som uppfyller dagens krav på boende, samtidigt som byggnaden smälter in i omgivningen och förmedlar en känsla av historia och autenticitet.
Bilder från Parhuset
Klicka på bilderna för att förstora.
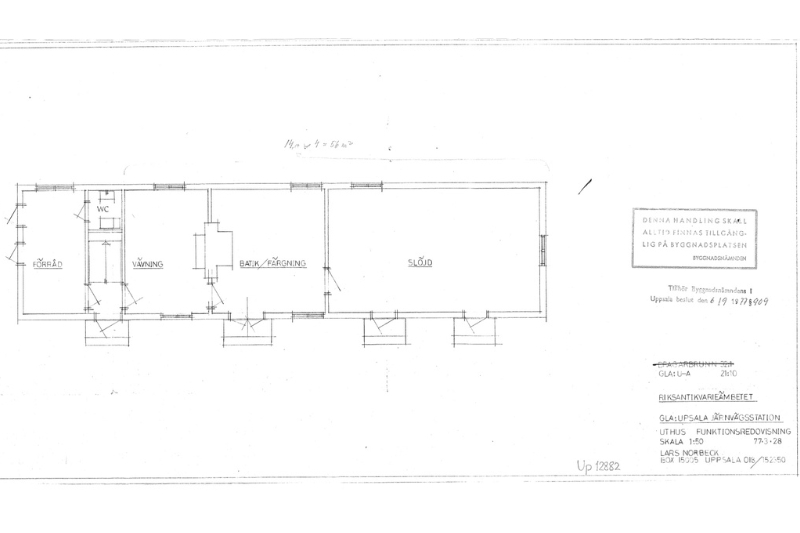
Ritningar
Klicka på ritningarna för att förstora.
Nyheter & Uppdateringar
Uppdateringar om Parhuset
No Results Found
The page you requested could not be found. Try refining your search, or use the navigation above to locate the post.




